(股票代码:831661)
联系我们  |   
当前位置 : 首页 > 关于金马 > 新闻媒体 > 专业资料 > 客房控制系统整体施工步骤

客房控制系统整体施工步骤

发布时间 2016-6-13 13:52:06 | 浏览次数: 12602620

1、绘制图纸。

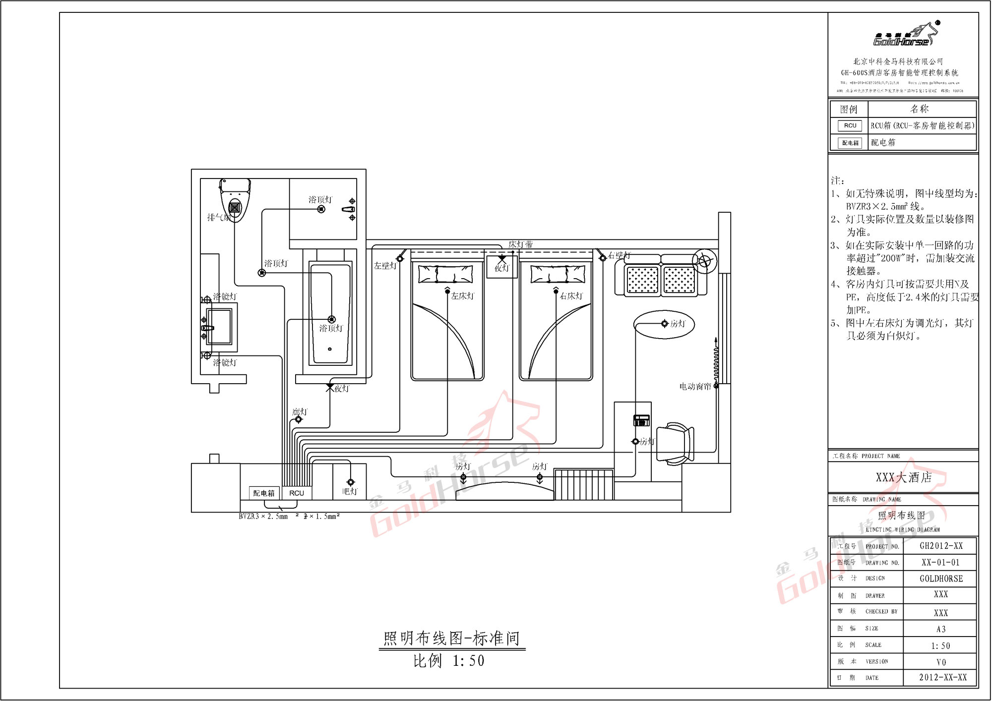
客户确定客房控制系统功能后,由金马技术人员绘制施工布线图纸。

客房控制系统照明布线图

图:金马客房控制系统照明布线图

2、预埋管线及安装“RCU箱体”。

强、弱电施工人员根据图纸,布管并穿线。完成后进行校线及标记工作。在预定位置(衣柜上端或走廊吊顶)安装RCU箱体(见下图)。

RCU箱体安装

图:金马RCU箱安装点位说明

3、安装“强电接线板”。

按照接线板上的标识,在相应端子及N排,地排上压接强电线(如灯具控制线、电源线、N线,PE线等)。各灯具控制线(L)接入红端子相应位置,系统中线(N)及灯具中线(N)压到N排,地线压到地排。灯具线路在接好后应做好标记。

金马客房控制系统强电接线板安装图

图:金马客房控制系统强电接线板安装点位说明

4、安装RCU主机。

当客房具备成品保护条件后,安装RCU主机。连接客房内强电配电箱与RCU之间线路;并连接强电接线盘与RCU主机(插入白色接插件)。

5、安装其它开关面板。

当客房墙面装修完成后,安装各开关面板(门外显示器、插卡取电、温控器及其它开关面板),并根据我方接线图纸进行接线。

6、校线。

灯具安装完毕后,检查线路。检测系统N是否与L短路或接地,所有灯具L线是否与N线短路或接地,并检查灯具线路与实际灯具是否对应。(为防止主机损坏,请在上电前仔细检查线路)。

7、单客房调试。

在确认线路无问题后,接通系统电源(AC 220V)。此时,RCU主机上红色工作指示灯应点亮。在取电开关中插入取电卡,操作每个灯光开关,查看对应状态(如按下廊灯开关,廊灯应点亮,再次按下此开关,廊灯熄灭);操作服务类开关,查看对应状态(如按下请勿打扰,看门外显示器上是否有相应指示)。所有功能都正常,则说明单客房系统正常。

8、联网及软件调试。

确保联网线路的物理连接正确,联网设备工作正常。在系统服务器上安装数据库及我公司服务器端软件,在前台、客房部或工程部安装客户端软件。系统设置完成后,查看各个客房的对应状态,网络温控器状态等等。

备注:以上酒店客房控制系统整体施工步骤仅供参考,具体项目以正式安装指导文件为准。

销售专线:400-678-6618 查看各地销售中心 招商合作
关注我们

京ICP备15007292号-3 京公网安备11011502038241号 页面版权所有:北京中科金马科技股份有限公司  

地址:北京市经济技术开发区(亦庄)运成街2号泰豪智能大厦A座5层 总机:010-67857050/1/2/3/5 销售专线:400-678-6618  

合作伙伴: 雅阁酒店管理集团  ※   泰豪科技  ※   清华同方  ※  杭州展望  ※  中信国安  ※  西软  ※  美国世磁压差开关  ※  金马科技